Łódź, Bałuty, Żubardź, Lutomierska

Mieszkanie na sprzedaż

Opis nieruchomości

4 POKOJE | 1 PIĘTRO | WSCH-ZACH | KOMÓRKA LOKATORSKA | BLOK Z CEGŁY 

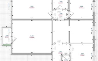
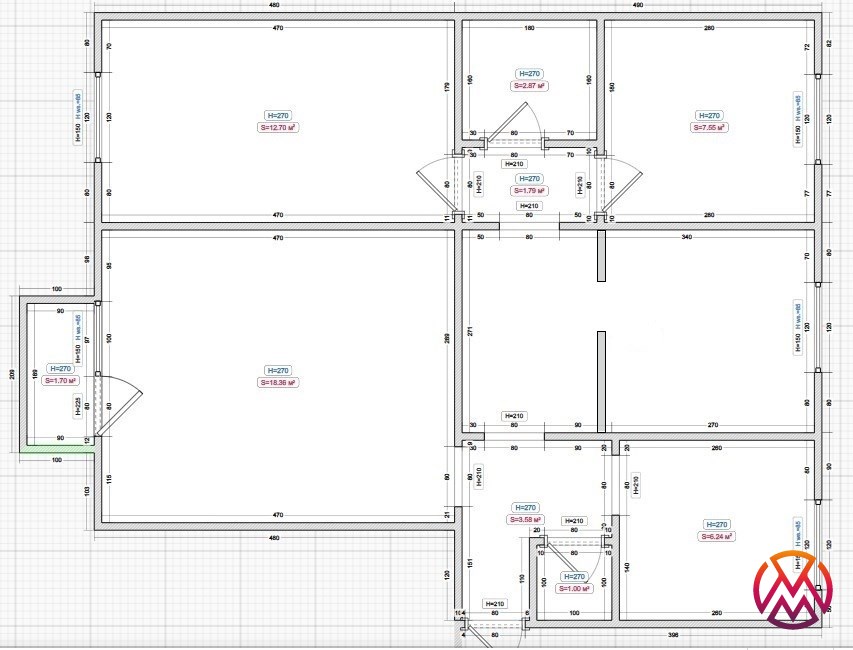
Na sprzedaż 4 - pokojowe mieszkanie o pow. 71 m2, położone na pierwszym piętrze bloku zlokalizowanego w okolicy ulic Klonowej/Lutomierskiej. Mieszkanie do remontu/odświeżenia. 

Składa się z czterech pokoi, oddzielnej kuchni, łazienki, oddzielnego WC oraz przedpokoju. Całość stanowi ponad 71 m2, do tego dodatkowo komórka lokatorska w piwnicy budynku. Salon wraz z jednym z pokoi z wystawą Wschodnią, zaś kuchnia i dwa pozostałe pokoje - wystawa zachodnia. Okna PCV. Lokal pusty, do remontu bądź do własnego umeblowania. 

Wszystkie media miejskie, brak podzielników CO. Przed blokiem liczne miejsca parkingowe, odremontowana ulica, nowe ciągi pieszo-rowerowe. Piony Wod-Kan wymienione przez wspólnotę mieszkaniową, która zarządza budynkiem - niski czynsz ok. 800 zł. Cicha okolica, blok po termomodernizacji, otoczony zielenią, w okolicy nowy plac zabaw, który powstał dzięki Budżetowi Obywatelskiemu. Zadbane klatki schodowe, czysta elewacja, spokojne sąsiedztwo.

Budynek usytuowany jest w spokojnej okolicy. Dobrze skomunikowany z pozostałą częścią miasta (linie autobusowe oraz tramwajowe). W niedalekiej odległości znajduje się centrum handlowe Manufaktura oraz inne lokale usługowo-handlowe m.in. Lidl, Żabka, Netto, Aldi, a także placówki medyczne, szkoły, przedszkola.


Odrębna własność lokalu z KW. Dostępne do wydania od zaraz. 

CENA: 465 000 zł 
Czynsz administracyjny: 810 zł (przy 1 osobie, w skład czynszu wchodzi m.in. ryczałt na ogrzewanie, zaliczka wodę C+Z, wywóz nieczystości, administrację, części wspólne, fundusz remontowy).

Nota prawna

Opis oferty zawarty na stronie internetowej sporządzany jest na podstawie oględzin nieruchomości oraz informacji uzyskanych od właściciela, może podlegać aktualizacji i nie stanowi oferty określonej w art. 66 i następnych K.C.

Szczegóły oferty

Symbol oferty MTP-MS-2290
Powierzchnia 71,00 m²
Powierzchnia balkonów/tarasów 3,00 m²
Liczba pokoi 4
Piętro 1
Rodzaj budynku blok
Technologia budowlana cegła
Standard
Opłaty w czynszu CO, Części wspólne, fundusz remontowy, ogrzewanie, sprzątanie, zaliczka na fundusz remontowy
Opłaty wg liczników gaz, prąd
Liczba pięter w budynku 4
Garaż przy budynku
Piwnica 2,00 m²
Stan lokalu do remontu
Stan prawny Odrębna własność lokalu
Mies. czynsz admin. 810 PLN
Okna PCV
Instalacje niewymienione
Balkon loggia
Liczba balkonów 1
Rok budowy 1970
Plac zabaw tak
Widok na osiedle
Gaz tak - miejski
Woda tak - miejska
Dojazd ASFALTOWA
Otoczenie osiedle
Ogrzewanie C.O. miejskie
Usytuowanie dwustronne

Pomieszczenia

Powierzchnia pokoi 19;13,13, 8 m2
Podłogi pokoi drewniana, parkiet
Typ kuchni jasna z oknem
Rodzaj kuchni oddzielna
Powierzchnia kuchni 6,3 m2
Podłoga kuchni płytki PCV, wylewka betonowa
Typ łazienki bez wc
Liczba łazienek 1
Powierzchnia łazienki 3 m2
Glazura łazienki glazura
Podłoga łazienki płytki, terakota
Wyposażenie łazienki wanna
Liczba WC 1
Powierzchnia WC 1 m2
Glazura WC glazura
Podłoga WC płytki
Liczba przedpokoi 1
Powierzchnia przedpokoi 5 m2
Podłoga przedpokoi parkiet

Lokalizacja

Kalkulator kredytowy

PLN
%
Wysokość raty

Kalkulator kosztów

PLN
PLN
PLN
PLN
PLN
PLN
%
PLN
Podatek od czynności cywilno-prawnych
Taksa notarialna (opłata notarialna)
VAT od taksy notarialnej (opłaty notarialnej)
Wniosek do WKW
VAT od wniosku do WKW
Prowizja agencji nieruchomości
VAT od prowizji agencji nieruchomości
Wypisy aktu notarialnego - około
RAZEM (cena + opłaty)

Podobne oferty

mieszkanie na sprzedaż - Łódź, Śródmieście, Wróblewskiego

mieszkanie na sprzedaż

Łódź, Śródmieście, Wróblewskiego
2 pokoje 42,47 m2 11 984,93 zł/m2
mieszkanie na sprzedaż - Łódź, Śródmieście, Piotrkowska

mieszkanie na sprzedaż

Łódź, Śródmieście, Piotrkowska
2 pokoje 46,00 m2 8 673,91 zł/m2
oferta na wyłączność
mieszkanie na sprzedaż - Łódź, Górna, Chojny, Mieszczańska

mieszkanie na sprzedaż

Łódź, Górna, Chojny, Mieszczańska
3 pokoje 62,00 m2 6 919,35 zł/m2

Napisz do nas

Proszę wypełnić to pole
Proszę wypełnić to pole
Proszę wypełnić to pole
Proszę wypełnić to pole
Trwa wysyłanie...

Ta strona wykorzystuje pliki cookies w celach statystycznych oraz w celu dostosowania naszych serwisów do indywidualnych potrzeb klientów. Zmiany ustawień dotyczących plików cookie można dokonać w dowolnej chwili modyfikując ustawienia przeglądarki. Korzystanie z tej strony bez zmian ustawień dotyczących cookies oznacza, że będą one zapisane w pamięci urządzenia.

rozumiem